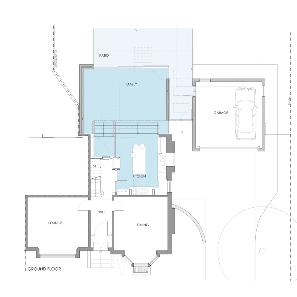
Been having a mooch through the archives and came across this great wee ‘before & after’. Removing the existing conservatory allowed us to open things up to create a split-level, open plan kitchen/family space, and seamlessly connect to the patio and garden.




